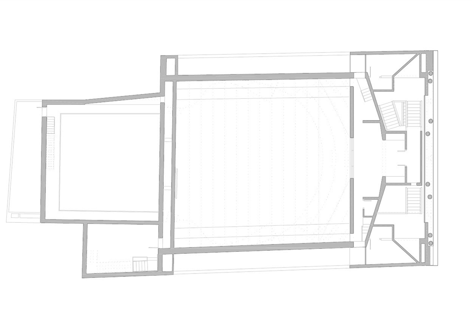
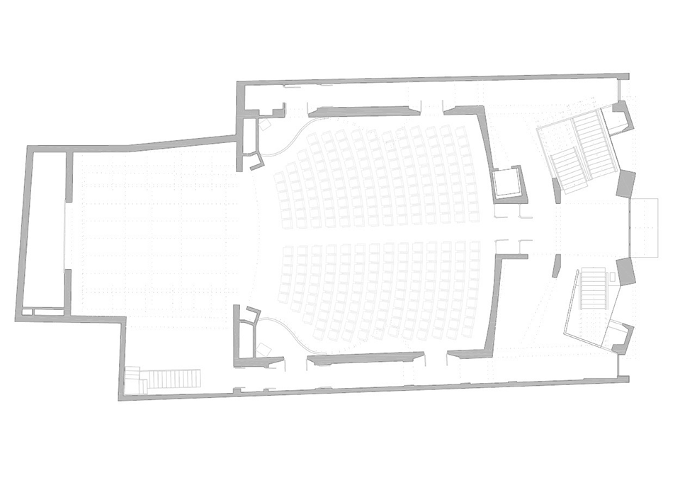
Teatro Oriente. MorĂ³n de la Frontera, Sevilla.